Struttura dei serbatoi
I serbatoi formoplast in estrusione rotativa si dividono in due principali categorie: verticali od orizzontali. I serbatoi orizzontali hanno due testate rinforzate, piane o bombate.
Corpo
In entrambi i casi il corpo è cilindrico con diametro interno da 800 a 4000 mm, spessore da 10 a 150 mm e altezza da 1 metro a circa 24 metri.
Verticale autoportante
Orizzontale fuori terra
Orizzontale interrato
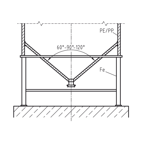
Fondo serbatoi verticali
– fondo piano (P1)
– doppio fondo inclinato internamente da 1° a 3° (P2)
– fondo inclinato esternamente da 1° a 3° (P3)
P1
P2
P3
– Fondo conico (con angolo a richiesta) con:
- appoggio a terra (C1),
- appoggio sospeso basso (C2),
- con anello di sostegno alto (C3),
- con telaio (C4).
C1
C3
C2
C4
Cielo
– conico saldato (T1)
– piano saldato (T2)
– piano imbullonato intero o diviso (T3)
– aperto, tipo vasca, con bordo rinforzato (T4)
T1
T3
T2
T4
Materiali utilizzabili
I serbatoi formoplast sono realizzati con materiali termoplastici: PE-HD (per la maggior parte dei casi) o PP (in caso di alte temperature di esercizio), con possibilità di rivestimento interno in PVDF. Per le compatibilità chimiche consultare la tabella di compatibilità chimica nel nostro sito o richiedere al nostro ufficio tecnico. Normalmente i serbatoi sono di colore nero (il PE) o grigio (il PP); a richiesta si possono richiedere altri colori.
Tipologie di serbatoi
Serbatoi cilindrici verticali autoportanti a fondo piano
I serbatoi formoplast sono realizzati secondo la Normativa Europea EN 12573 e soddisfano i requisiti sulle leggi di sicurezza e antinquinamento del territorio. Altre omologazioni possono essere quelle Tedesche WHG 19l o DVS 2205; a richiesta si può richiedere l’omologazione TUV.
Serbatoio a semplice parete
Serbatoio con vasca di sicurezza
Serbatoio a doppia parete con controllo tenuta ermeticità in continuo: non necessita di vasca di sicurezza! Il sistema, omologato, se rileva un difetto di tenuta sul liner o sulla parete esterna lancia un allarme ottico e acustico con possibilità di rimando ad un controllo remoto. Questo tipo di serbatoio soddisfa tutti i requisiti di legge sulle norme di tutela delle acque e antinquinamento.
I serbatoi interrati possono essere in versione a doppia parete con sistema elettronico di controllo delle perdite, per soddisfare le richieste sulla tutela antinquinamento.
Fasce in acciaio inox per contrastare le spinte di galleggiamento
Per un corretto interramento prevedere un perimetro intorno al serbatoio di 500 mm riempito di sabbia
Se per motivi di spazio non possono essere utilizzati i serbatoi verticali, esiste la versione orizzontale fuori-terra appoggiata su selle in acciaio.
Scrubber
Scrubber e costruzioni speciali anche a disegno del Cliente.
Serbatoi a fondo conico
Serbatoi a fondo conico per scarico completo da sotto.
